前两天和几个朋友一起聊天,其中有一个朋友住在世纪城。从入住到现在,差不多快20年了,但至今让他感到满意的就是整个世纪城居住得很便利。除了地段之外,包括教育、商业等配套特别丰盛,而且直到目前为止,世纪城依然是整个西四环价格的一个标杆。
那为什么世纪城较之于周边其它楼盘,二手房能够保持如此坚挺?作为业内人士,我帮他分析了一下,核心五个字:大盘的魅力。
其实在北京有很多之前开发过的项目往往因为是大盘,第一它的配套相当的丰富。刚才所提到的教育、商业,包括交通,甚至更远的医疗等。第二个因为是大盘,所以它往往能成为整个区域价格的一个锚定物。但是最近几年在北京很少能出现大盘了,因为土地越来越稀缺,政府在做土地出让的时候,往往是把地块切小。比如说刚刚过去的2025年上半年,北京一共出让了22宗地,建筑面积超过20万平以上的只有一宗。
说完这些之后,另一个朋友就问,那在北京当下还有没有入住大盘的机会?我说有,这个项目就是由北京城建开发的国誉燕园。我先说下这个项目的四大核心价值。

站在国家方向上,发展前景无限
大家都知道,由马池口镇、南口镇和沙河高教园所构成的“两口一园”,是北京科技创新中心的重要承载地。在新时代坐标下,北大和清华两座顶级学府再度合璧,以国家意志重塑创新版图,让马池口成为新质生产力策源地。
在此背景下,国誉燕园的区位优势及价值就凸显出来了。因为国誉燕园距离北大新燕园校区仅约1.5公里,占据了科学小镇的黄金位置,在“新北大,新工科”的产业发展赋能下,资产锚定价值未来可期。

三星连珠之势已成,百万大盘版图呈现
其实相对了解北京城建的朋友都知道,之前北京城建相继在东城、朝阳、海淀、顺义等区域,都开发了很多知名的作品。包括刚才所提到的百万级的大盘,至今来说也都成为大家公认的好盘、名盘。
而在国誉燕园的打造上,北京城建同样彰显出了深耕者的担当。2022年5月北京城建摘得A07地块,打造了国誉燕园︱博雅;2024年7月北京城建继续摘得A04地块,打造了国誉燕园︱朗润;2024年12月26日安居工程正式开工,由此形成三星连珠之势,三个地块总建筑面积超过64万平方米,总计户数超过4200户,由此成为整个区域内百万平方米的大盘。

美好生活兑现中
成就“职住平衡”宜居品质
这点对于居住者来说相当的重要。在刚开始我也提到了关于大盘的优势,就是丰盛的生活配套让社区自成生态体系,成就宜居的氛围。从这一点来说,国誉燕园的美好品质也正在逐步兑现中。分几点来说:
1、绿色生态宜居品质一流。整个项目拥有约2万平方米的燕园公园,已于2023年正式开放,燕园公园涵盖阳光草坪、房车营地、星空帐篷、丛林穿越等功能,已成为区域内知名的打卡胜地,业主在家门口即可享受放松心情的好去处。



2、丰盛商业配套满足生活所需。国誉燕园为了给业主提供良好的生活体验,项目在三个地块共计配建了约7100平方米的商业,其中博雅商业“燕潮荟”,这个商业里面的业态都是由开发商和业主共创的,就是广泛的征集业主在未来入住之后,对于商业配套内容的需求,最终在燕潮荟商业中构建了像生活超市、业主食堂、燕园书院、健身房、理发店、药店等丰盛业态,这些业态也都是业主日常急需的配套。同时,区域内还规划了建面约16000平方米的综合性商业,加上已建成的海淀大悦城、超极合生汇等大型商业,由此也成就良好的购物体验。




3、教育配套,这点也是项目的核心优势之一。项目家门口就是北大直属管理的附幼,这个附幼一共是18个班,同时还有附小,36个班,一路之隔就是北大附中。无论从幼儿园、小学、中学,都能够让项目的业主实现目送式教育。
4、交通配套。目前项目已经构筑了多元化的交通网络,实现了快捷的交通效率。市郊铁路东北环线在项目设有站点,同时区域内的上庄快速路昌平段已经开工,预计今年将正式通车。海淀段一期已经通车,二期已经开建,三期已经公示。未来可高速连接北清路,让业主的出行更高效、更便捷。
5、兑现美好生活的品质。今年10月,目前已经是准现房的国誉燕园︱博雅将迎来业主的正式入住。为了给未来业主带来更美好的生活感受,北京城建还不计成本,对项目进行免费增配,增加收纳柜、鞋柜、餐边柜、电动晾衣杆和鞋柜消毒机等设备,由此能看出项目兑现美好的拳拳用心。
北京市首批“好房子”项目
产品力超能打,价格有惊喜
2025年是北京楼市的好房子元年,在好房子这个新赛道上,国誉燕园︱朗润推出三大革新户型,主打“南向面宽突破性设计”,主卧套房与南向宽景阳台结合,从而让部分户型最高的使用率达98%。下面我具体说下项目三个主力户型的亮点:
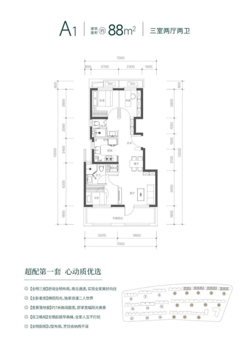
建面约88平方米三居户型为南北通透全明格局,客厅和主卧均配备落地窗,从而让观景视野实现最佳;约20平方米的客厅,双卫格局也更符合现代人的生活需求。特别要说一点,在这次国誉燕园︱朗润所推出的所有户型当中,把收纳空间都作为了户型的一大亮点,建面约88平方米户型的交付收纳容量达到了约8立方米,从而可以充沛收纳各类生活用品。

建面约104平方米三居户型,南向三面宽约9.6米,南向阳台、飘窗以及北向设备平台均有面积赠送,建面约104平方米三居户型使用空间能够达到约120平方米,远超周边的同类项目。同时,餐厅空间足够宽绰,能容纳同时6人就餐,另外还有一个餐边柜;建面约104平方米户型交付收纳容量约11.1立方米,从而让生活空间整洁有序。



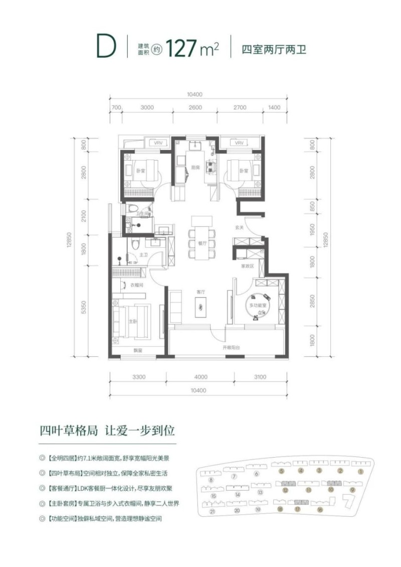
建面约127平方米的四居户型,采用经典的四叶草空间布局,南向三面宽约10.4米,LDKB一体化设计,成就“家庭交流场”;主卧套房面积约23.6平方米,让男女主人拥有舒适静谧空间;建面约127平方米户型交付收纳容量约13立方米,也由此成就了高效的收纳体系。



如今国誉燕园这座“新北大生活主场”大城已成,美好生活图景正在照进现实。
据悉,朗润已取得销售许可证,价格据说还有惊喜。好房子的产品属性,好生活的美好兑现,好产业的超级赋能,不管您是单身贵族、二人世界、三口之家、二孩家庭还是三代同堂,我相信在这里都能找到适合的户型。对于想要感受大城生活美好的购房人来说,一定要抓住这个好机会。